Navigation aufklappen/zuklappen
Willkommen
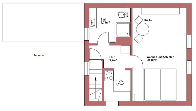
Wohnung EG
Wohnung OG
Preise & Kontakt
Anfahrt
Oppenheim
Impressum
Willkommen
Wohnung EG
Wohnung OG
Preise & Kontakt
Anfahrt
Oppenheim
Impressum
Ferienwohnungen am Zuckerberg
Ferienwohnungen am Zuckerberg
Die Ausstattung im Überblick
Voll ausgestattete Küchenzeilen mit Ceranfeld und Backofen, Geschirrspüler, Kaffeepad-maschine, Wasser-kocher,
Toaster.
Die Doppelbetten können jeweils auch einzeln gestellt werden. Ausklappbarer Sessel und Schlafcouch.
Beide Wohnungen mit Sat-TV und W-LAN.
Geräumige Badezimmer mit Tageslicht. Dusche, WC, Haarföhn,Schminkspiegel und Handtücher.
Im Hof befindet
sich ein Freisitz zum Rauchen
. Fahrräder können untergestellt werden.
Haustiere sind nicht möglich.
Beide Wohnungen sind
Nicht-raucher
wohnungen.